年中無休!朝6時~夜22時まで無人内見会開催!

ヤマックスの住まいは高性能を活かした間取り。全熱交換型換気システム「SUMIKA」を採用することによって
24時間、カビや花粉、ダニを除去しながら綺麗な空気で快適に過ごすことができます。
なおかつ夏は涼しく冬は暖かい、そんな居心地の良い住まいを実現しました。
高い性能に加えて空気の質までこだわりぬいたヤマックスの家に
IoTの技術を取り入れて、さらに安心で快適な住まいを叶えました。
IoT住宅とは、家の設備や家電がスマホや音声で操作できる、便利で安心な“賢い家”のことです。
1.毎日の家事をもっとラクに、暮らしがもっとスマートに
外観

内観
心地よさと美しさを叶える、落ち着いたジャパンディスタイルの2階建て。


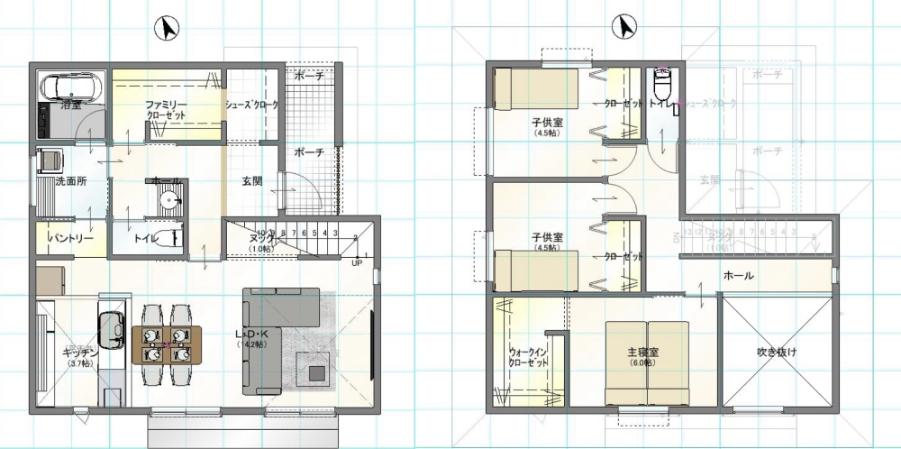
間取り

リビングには1帖のヌックスペースを設けました。様々な用途に使えます。
また生活しやすい回遊動線にもなっています。
IoT住宅 ( 防犯カメラ・電動シャッター・カーテンなど )、長期優良住宅、耐震等級3、全熱交換型換気システム「澄家」採用、高断熱 UA値 0.42、高気密 C値0.4以下の高性能住宅です。
2.平屋で叶える、無駄なく心地よいワンフロアライフ
外観

内観
平屋ならではのムダのないコンパクト設計で、流れるようにスムーズな動きが叶います。

間取り

プライベートを守りながら家族で楽しめるオープンなテラス空間と、ゆったりこもれるヌックスペースを用意しました。
IoT住宅 ( 防犯カメラ・電動シャッター・カーテンなど )、長期優良住宅、耐震等級3、全熱交換型換気システム「澄家」採用、高断熱 UA値 0.42、高気密 C値0.4以下の高性能住宅です。
是非、ご見学ください。

イベント概要
| 主催社 | 株式会社ヤマックス |
|---|---|
| イベント名 | 【八代市井上町】無人内見はじめました【2棟同時】 |
| 開催日時 | 2026.02.23(月) 10:00〜2026.05.31(日) 18:00 |
| ジャンル | 完成見学会 |
| エリア | 八代市 |



